- 217 m²
- 3
- 366 m²
- 217 m²
- 3
- 366 m²
Moderne casco woning met 3slpks en bureauruimte in Boekt! Aankoop gebeurt onder 12% registratierechten i.p.v. 21% BTW!
Ontdek deze eigentijdse nieuwbouwwoning in het rustige en residentiële Boekt – een strakke architectuur gecombineerd met duurzame materialen en veel ruimte voor eigen invulling.
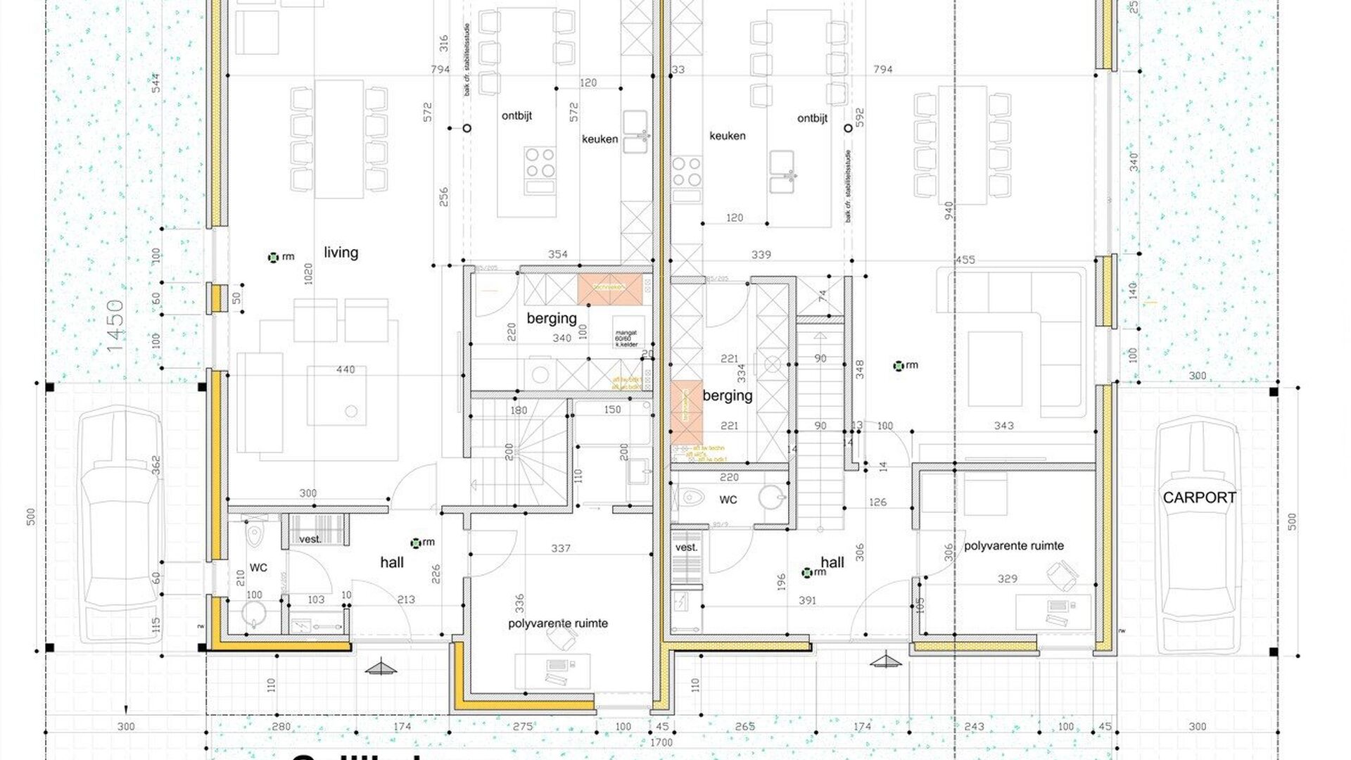
Deze casco woning biedt reeds een solide basis met doordachte indeling en hoogwaardige voorbereiding voor verdere afwerking. Bij het binnenkomen word je verwelkomd in een ruime inkomhal met gastentoilet, en meteen rechts bevindt zich een polyvalente ruimte – ideaal als bureau of praktijkruimte voor vrij beroep.
De woonkamer met open keuken zorgt voor een aangenaam gevoel van ruimte en licht. Dankzij het open concept kan deze ruimte naar eigen smaak ingericht worden als het warme hart van de woning.
Op de verdieping vinden we drie zeer ruime slaapkamers, waarvan één voorzien is van een aansluitende dressing. Daarnaast is er een volwaardige badkamer én een aparte berging/technische ruimte, wat zorgt voor extra comfort en praktische opbergruimte.
Gelegen in het hart van Boekt, vlak naast de lagere school en op een steenworp van de E314, biedt deze woning een perfecte combinatie van kindvriendelijkheid en bereikbaarheid. Een rustige, groene buurt met alles binnen handbereik; ideaal voor gezinnen en zelfstandigen.
Pluspunten;
- Aankoop aan 12% registratierechten i.p.v. 21% BTW!
- Casco woning met mogelijkheid tot afwerking op maat, in samenspraak met de bouwheer!
- 3 tot 4 slaapkamers met dressing!
- Bureau of polyvalente ruimte op het gelijkvloers, ideaal voor vrije beroepen!
- Strakke, moderne architectuur met duurzame materialen!
- Aircoleidingen zijn reeds voorzien!
Financieel en beschikbaarheid
- Nettoprijs
- € 339.000
- Beschikbaarheid
- Vanaf akte
Gebouw
- Bewoonbare opp.
- 217,0 m²
- Constructie
- Halfopen
- Bouwjaar
- 2025
- Type dak
- Platdak
Terrein
- Perceel opp.
- 366,0 m²
- Breedte aan de straatkant
- 12 m
- Tuin
- 115,0 m²
Indeling
- Slaapkamers
- 3
- Badkamers
- 1
- Terras
- Ja
Ligging
- Omgeving school
- 100 m
- Omgeving openbaar vervoer
- 100 m
- Omgeving winkels
- 2.000 m
- Omgeving autosnelweg
- 2.000 m
Garage
- Garage
- Nee
- Buitenparking
- 2
Comfort
- Gemeubeld
- Nee
- Lift
- Nee
Energie
- E-level
- 20
- Type ramen
- Aluminium
- Beglazing
- Dubbele beglazing
Stedenbouwkundige informatie
- Stedenbouwkundige info
- Ja
- Bestemming
- Woongebied
- Bouwvergunning
- ja
- Verkavelingsvergunning
- ja
- Voorkooprecht
- Nee
- Bodemattest
- Ja
